新築一戸建
港北区綱島台
8,580万円〜
- 所在地
- 横浜市港北区綱島台16-13
- 交通
- 東急東横線「綱島」駅 徒歩14分
- POINT
Outline
物件概要
| 所在地 | 横浜市港北区綱島台16-13 |
|---|---|
| 交通1 | 東急東横線「綱島」駅 徒歩14分 |
| 交通3 | 相鉄新横浜線「新綱島」駅 徒歩19分 |
| 価格 | 8,580万円〜8,980万円(税込) |
| 物件名称 | 港北区綱島台 |
| 物件番号 | 2996 |
| 物件種別 | 新築一戸建 |
| 販売棟数 | 全4棟 今回販売4棟 |
| 土地面積 | 104.42㎡〜149.93㎡ |
| 建物面積 | 98.74㎡〜110.86㎡ |
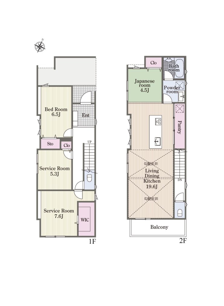
| 間取 | 1SLDK〜4LDK |
| 建物構造 | 木造 2階建 |
| 完成 | 2025年10月完成予定 |
| 都市計画 | 市街化区域 |
| 地目 | 宅地 |
| 用途地域 | 第一種低層住専 |
| 建ぺい率 | 60% |
| 容積率 | 100% |
| 現況 | 建築中 |
| 取引態様 | 専任媒介 |
| 小学区 | 横浜市立北綱島小学校 ※1 |
| 中学区 | 横浜市立日吉台中学校 ※1 |
Contact
お問い合わせ
- メールでのお問い合わせ
- お電話でのお問い合わせ
-
045-222-7180





